TRU applies to build four-storey, 80 unit dorm
KAMLOOPS — A new dorm building for Thompson Rivers University (TRU) students may be built near TRU’s East Village.
On Tuesday (July 19) representatives from TRU and Stites Consulting Inc. will apply for a development permit application for the building, which would be built on the northwestern portion of a TRU property across Summit Drive. The proposed building is the first of potentially three new buildings on the property.
The area is accessed via Dalgeish Drive. There are currently five dorm buildings on the site with 144 units and a total of nearly 500 beds.
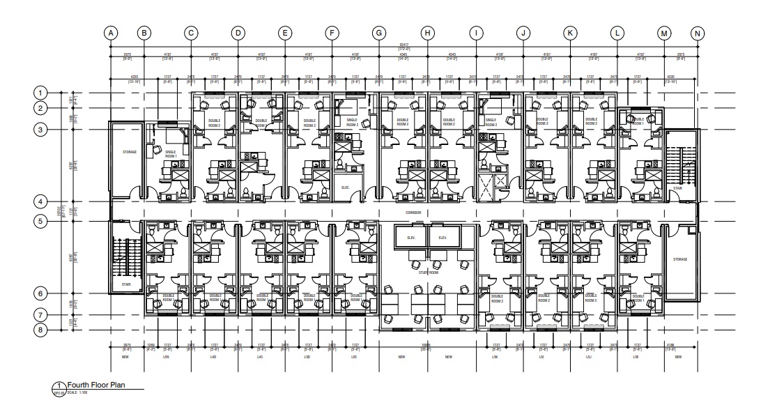
The proposed layout for the dorm building (Photo credit: City of Kamloops).


